
AG reality I všetky REZERVOVANÉ - novostavba 5 izb RD -mezonety Miloslavov Alžbetin dvor

Ulica: | Lesná |
---|---|
Mestská časť: | Alžbetin Dvor |
Obec: | Miloslavov |
Okres: | Senec |
Kraj: | Bratislavský kraj |
Druh: | Domy |
Typ: | Predaj |
Typ domu: | Rodinný dom |
Ponúkame na predaj 5-izbové rodinné domy na pozemkoch o rozlohe 305 m2 a úžitkovej plochy domov 130m2 a 128m2 v obci Miloslavov časť Alžbetin Dvor, ktoré sú situované v troch dvojdomoch. V obci je plná občianska vybavenosť a všetko potrebné pre komfortné bývanie.
Domy v obci Miloslavov sú v 5-izbovom prevedení a majú pomerne veľké izby, v ktorých sa budete cítiť pohodlne. Nadštandardný komfort bývania je zachovaný pri skvelom pomere kvality, rozlohy a ceny. Moderná dispozícia zahŕňa tri spálne s dodatočným úložným priestorom, veľkú obývačku s kuchyňou a východom na terasu, dve kúpeľne a technickú miestnosť. Súčasťou stavby sú aj tri parkovacie miesta priamo pred domom.
5-izbový dom je súčasťou dvojdomu, ale jedná sa o samostatnú stavbu, ktorá má vlastné obvodové múry (úplná dilatácia), samostatný vodomer i elektromer. Domy majú rekuperáciu a vykurovanie je zabezpečné tepelným čerpadlom-vzduch/voda s podlahovým kúrením teplovodným. Nad schodami je vyvedený svetlík a v každej izbe je predpríprava na alarm a elektrické žalúzie.
Mesačné náklady na dom sú vypočítané na 100EUR, avšak záléží aj od vývoja cien energií na trhu.
Predaj domov v štádiu holodom v obci Miloslavov bude s možnosťou dokončenia na kľúč. Domy sú aktuálne vo výstavbe no už teraz si môžete vybrať ten, ktorý vám najviac vyhovuje a rezervovať si ho.. KOLAUDÁCIA MÁJ 2022
Cena HOLODOMU 269.000 EUR
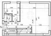
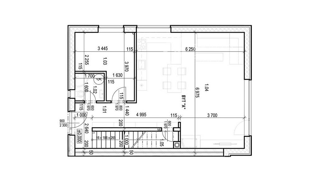
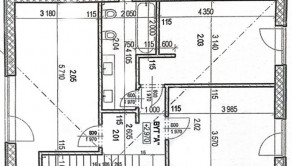
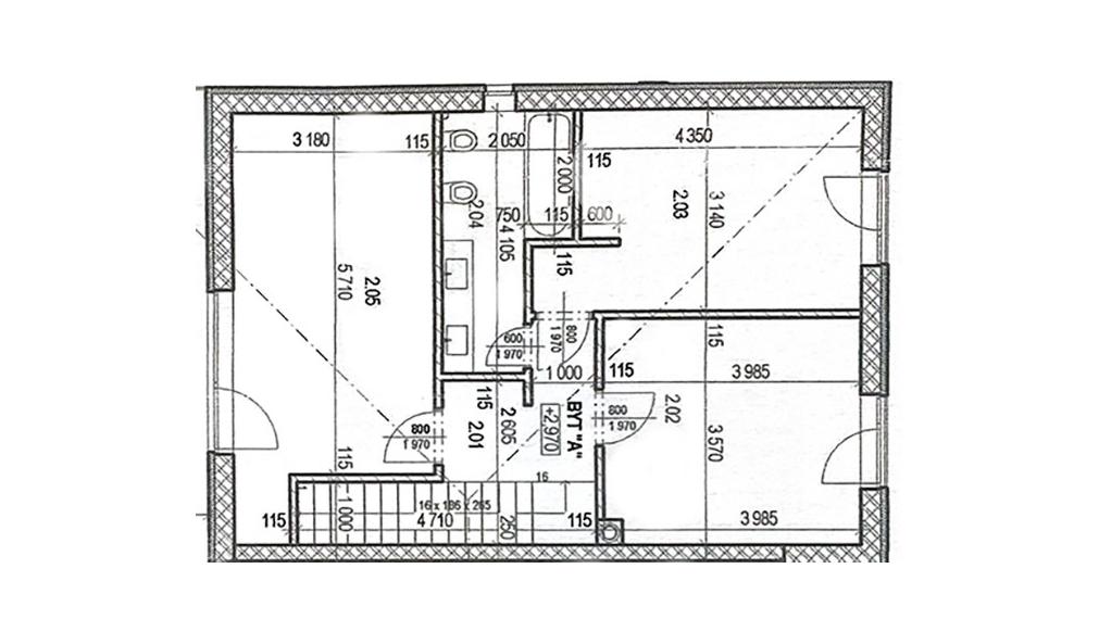
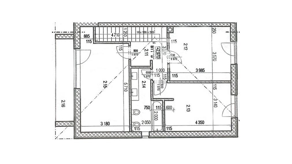
DOM A rozloha 130,45m2
zádverie : 8,08m2
WC s kúpeľňou : 2,72m2
Izba 1 : 10,56m2
Obývačka s kuchyňou : 38,94m2
Komora : 3,02m2
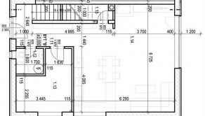
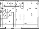
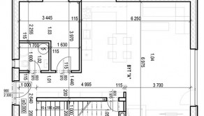
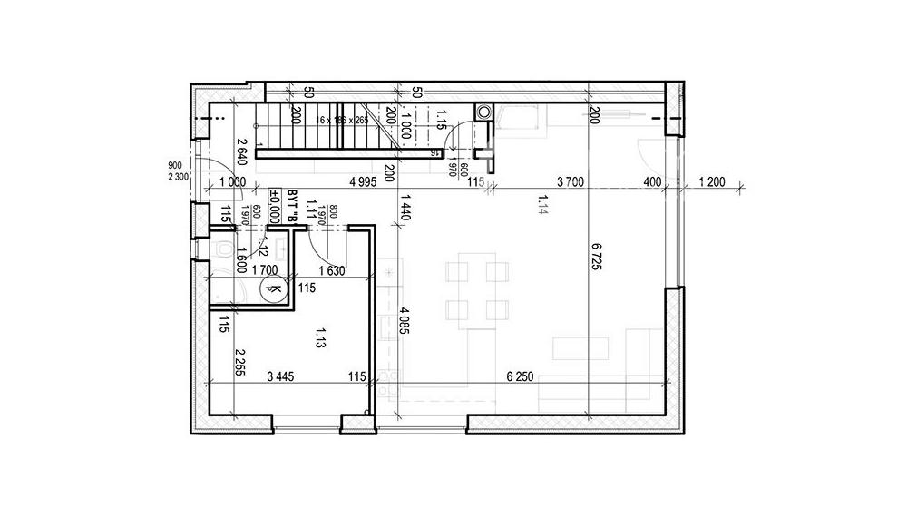
poschodie :
Chodba : 4,80m2
Izba 2: 14,11m2
Izba3: 14,36m2
WC s kúpeľňou: 6,84m2
Izba4: 19,14m2
Balkón: 8,61m2
DOM B: rozloha : 127,62m2
zádverie : 8,08m2
WC s kúpeľňou : 2,72m2
Izba 1 : 10,56m2
Obývačka s kuchyňou : 38,31m2
Komora : 3,02m2
poschodie :
Chodba : 4,81m2
Izba 2: 14,11m2
Izba3: 14,36m2
WC s kúpeľňou: 6,84m2
Izba4: 19,14m2
Balkón: 6,39m2
Radi Vám dom ukážeme . Volajte maklér : Veronika Gašpariková , mobil : +421 901 727 778 , mail : veronika.gasparikova @agreality.sk
riaditeľ pobočky