Používame cookies

Súbory cookie a ďalšie technológie sledovania používame na zlepšenie vášho zážitku z prehliadania našich webových stránok, na to, aby sme vám zobrazovali prispôsobený obsah a cielené reklamy, na analýzu návštevnosti našich webových stránok a na pochopenie toho, odkiaľ naši návštevníci prichádzajú. Viac info

 

AG reality I PREDANÝ POSLEDNÝ - 5 izb RD -mezonet Miloslavov

Ulica: Perličková
Obec: Miloslavov
Okres: Senec
Kraj: Bratislavský kraj
Druh: Domy
Typ: Predaj
Typ domu: Rodinný dom
289 000 €

Popis nehnuteľnosti

Realitná kancelária AG Reality & finance , s.r.o  Vám exkluzívne predstavuje na predaj  už len jeden 5- izbový poschodový rodinný dom v dvojdome v obci Miloslavov. Táto lokalita Vám ponúka kompletnú občiansku vybavenosť a má veľmi dobré napojenie na diaľnicu D4 a R7 vďaka ktorej máte rýchly prístup do Bratislavy.

NA PREDAJ:

5-izbový poschodový dom v dvojdome , ktorý sa už kolauduje 

VÝMERA:

 UP: 112m2  ,  Tersasa zo spálne : 19 m2 , Terasa z obývacej miestnosti : 16,74m2

 DISPOZIČNÉ RIEŠENIE:

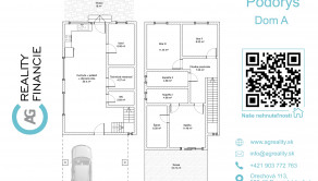
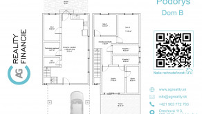
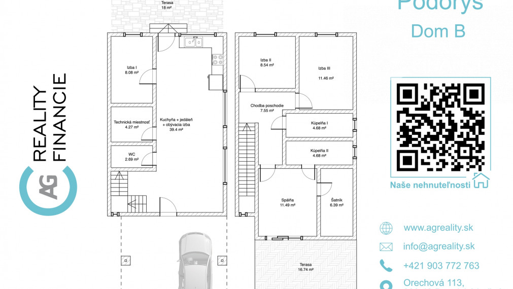
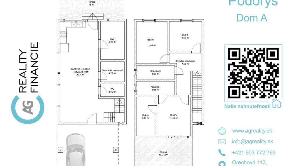
Po vstupe do domu sa nachádzate na chodbe z ktorej máte priamy vstup do kuchyni spojenej s obývačkou a schodisko, ktoré Vás zavedie na horné poschodie. Na prízemí sa nachádza už spomenutá obývačka s kuchyňou, wc, jedna izba (pracovňa) a technická miestnosť. Z obývačky máte priamy vstup na priestrannú terasu o výmere 19 m2.

Na poschodí sa nachádza chodba, z ktorej máte priamy vstup do 3och izeb a kúpeľňi. Jedna z izieb má aj priamy vstup na priestranný balkón, zabudovaný šatník a samostatnú kúpeľňu so sprchovým kútom.

Dom je orientovaný na JV/SZ.

ROZLOŽENIE DOMU :
1NP:
Obývacia izba nsnKuchyňou / jedáleň : 39,4m2
Pracovňa  : 8,08m2
Tech. miestnost /Sklad: 4,27m2
WC: 2,69m2
polu uzitkova plocha : 54,44m2
2NP:
Chodba : 7,55m2

Spálňa : 8,53m2
Spálňa : 11,45m2
Kúpelňa 1 : 4,68m2
Kúpelňa 2 : (vstup zo spálne) : 4,68m2
Spálňa : 11,49m2
Šatník v spálni : 6,39m2
spolu uzitkova plocha : 54,77m2
spolu uzitkova obe poschodia : 109,21m2

k tomu je ešte terasa z obývacej miestnosti o výmere 16.74m2

a terasa zo spálne o velkosti : 18m2 

spolu: 143,95m2
POUŽITÉ MATERIÁLY:

Dvojdom je postavený z YTONGU 37 cm a navzájom su od seba oddelené úplnou diletáciou. Vyhotovenie stropu: keramický strop, tepelná izolácia spádová od 48 do 30 cm, hydroizolácia Sika , štrk zásyp.

Zateplenie domu má 10 cm, vykurovanie domu je podlahové elektrické a  na poschodí sú elektrické radiátory. Elektrika v dome je 230 V a zvlášť je elektrika - samostatný istič  na indukčnú varnú dosku a elektrickú rúru . Okná sú značky SALAMANDER ( 6 komorové 3- sklo),  Wc znažky GEBERIT.

HOLODOM OBSAHUJE:

Parkety - plavajúcu podlahu , obloženie schodov ,vypínače a zásuvky Legrand bielej farby, predprípravu na  elektrické žalúzie, predprípravu na alarm , zvonček ,  terénne úpravy a trávnik. Dom je možné napojiť na optiku T-COM  a má  200L bojler. Holodom záhŕňa aj zámkovú dlažbu pred domom a aj na terase ktorá je zo zadnej strany domu.

V holodome nie je vyhotovenie kúpeľní , zárubní , interiérových dverí  a svetiel na schodisku.

POZEMOK: 

Plocha pozemku  337m2 a 345 m2, všetky inžinierske siete (vodovod, kanalizácia, elektrika), terasa, okapový chodník, oplotenie z dvoch strán
PARKOVANIE:

Voľná plocha pred domom pre dve parkovacie miesta
LOKALITA:

Dedina Miloslavov je od Bratislavy vzdialená 15 km. (Podunajské Biskupice 10 km, Šamorín 15 km) Rýchla dostupnosť je zabezpečená vlakom (RegioJet) ako aj autobusom a má veľmi dobré napojenie na diaľnicu D4 a R7 vďaka ktorej máte rýchly prístup do Bratislavy. V obci je veľmi dobrá občianska vybavenosť – kultúrny dom, škôlka, pošta, OC Miloslavov a len pár km je základná škola, dve škôlky, 2x potraviny, kaderníctvo, kozmetika, lekár pre dospelých, detské plavecké jasličky, ihrisko, kostol, úrad, lekáreň, zmrzlina

V  OC Miloslavov najdete obchody ako:  Billa, 101 Drogéria, pekáreň, vinotéka, barbershop, policajná stanica, manikúra a pedikúra, kvetinárstvo


 


 

Vlastnosti

Status:
aktívne
Vlastníctvo:
osobné
Stav:
novostavba
Celková plocha:
144 m2
Úžitková plocha:
144 m2
Plocha pozemku:
346 m2
Zastavaná plocha:
90 m2
Počet podlaží:
2
Počet izieb:
5
Kúpeľňa:
vaňa a sprchovací kút
Počet kúpeľní:
2
Klimatizácia:
nie
Káblová televízia:
áno
Parkovanie:
áno
Voda:
verejný vodovod
Inžinierske siete:
áno
Kanalizácia:
áno
Plyn:
nie
Internet:
áno - káblový rozvod
Materiál:
Ytong
Zateplený objekt:
áno
Terasa:
áno
Terasa plocha:
35 m2
Vykurovanie:
vlastné - elektrické
Pivnica:
nie
Status:
aktívne
Vlastníctvo:
osobné
Stav:
novostavba
Celková plocha:
144 m2
Úžitková plocha:
144 m2
Plocha pozemku:
346 m2
Zastavaná plocha:
90 m2
Počet podlaží:
2
Počet izieb:
5
Kúpeľňa:
vaňa a sprchovací kút
Počet kúpeľní:
2
Klimatizácia:
nie
Káblová televízia:
áno
Parkovanie:
áno
Voda:
verejný vodovod
Inžinierske siete:
áno
Kanalizácia:
áno
Plyn:
nie
Internet:
áno - káblový rozvod
Materiál:
Ytong
Zateplený objekt:
áno
Terasa:
áno
Terasa plocha:
35 m2
Vykurovanie:
vlastné - elektrické
Pivnica:
nie

Informatívna úverová kalkulačka

Pozrieť na mape

Maklér

Andrea Gašpariková

Andrea Gašpariková

Konateľ

  • Slovensky
  • Česky
  • rusr
  • lrm
  • narks

Radi Vám poradíme

Podobné nehnuteľnosti