Používame cookies

Súbory cookie a ďalšie technológie sledovania používame na zlepšenie vášho zážitku z prehliadania našich webových stránok, na to, aby sme vám zobrazovali prispôsobený obsah a cielené reklamy, na analýzu návštevnosti našich webových stránok a na pochopenie toho, odkiaľ naši návštevníci prichádzajú. Viac info

 

AG reality I PRENAJATÝ - zariadený 3i. byt na ZÁHRADNÍCKEJ - OCTOPUS

Ulica: Zahradnická
Mestská časť: Nivy
Obec: Bratislava-Ružinov
Okres: Bratislava II
Kraj: Bratislavský kraj
Druh: Byty
Typ: Prenájom
Typ bytu: 3-izbový byt
1 200 €/mesiac
vrátane energii

Popis nehnuteľnosti

AG Reality & finance , s.r.o  Vám ponúka  na prenájom kompletne zariadený 3i. byt s Garážovým parkovaním  na Záhradníckej 74- OCTOPUS, Bratislava II - Ružinov.

Pokiaľ túžite po bývaní v najvyhľadávanejšej  časti Bratislavy, v Ružinove, v blízkosti Štrkoveckého jazera,  s výbornou dostupnosťou MHD, parkov, obchodov, reštaurácií, bistier či kaviarní, tento byt je ako stvorený pre Vás.

NA PRENÁJOM:

3-izbový byt, kompletne zariadený s nábytkom a spotrebičmi aj s garážovým parkovaním. Voľný ihneď k nasťahovaniu.

VÝMERA:

85,6 m2 a loggia 3,4 m2

 POSCHODIE:

Byt sa nachádza na 8/11 poschodí bytového domu s výťahom. Výhodou tohto poschodia je že sa na ňom nachádzajú len dva byty vďaka čomu máte zaručené väčšie súkromie. Bytový dom má 2 recepcie + otváranie s elektronickým vrátnikom. Objekt má vlastný vnútorný park.

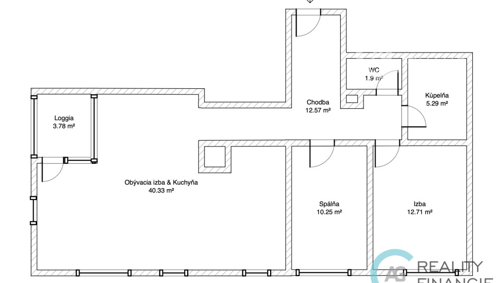
DISPOZIČNÉ RIEŠENIE:

Po vstupe do bytu sa nachádzate na chodbe s rolldorom po celej dĺžke. Z chodby máte priamy vstup do 2och nepriechodných izieb ( spálňa a detská izba) a do obývačky prepojenej s kuchyňou s výstupom na loggiu. V priestrannej  obývačke je klimatizácia a je priamo prepojená s kuchyňou .

V byte sa nachádza samostatné wc a samostatná kúpeľňa. V kúpeľni sa nachádza vaňa.  

BYT:

Pozostáva z 3och obytných miestností, vstupného priestoru, kuchynského kútu, kúpeľni, WC a loggie

PIVNICA:

Výmera pivnice je 2,1 m2
PARKOVANIE:

V cene nájmu  je  už  garážové státie.  

LOKALITA:

Byt sa nachádza v časti Bratislava II- Ružinov odkiaľ máte hneď pred domom zastávky MHD (električiek aj autobusov) vďaka ktorým sa dostanete takmer kamkoľvek v Bratislave. V okolí bytového domu sa nachádzajú školy, reštaurácie, kaviarne, nemocnica, čerpacia stanica. Štrkovecké jazero a BILLA  sa nachádzajú vo vzdialenosti 5 min. autom. V blízkosti sa nachádza aj Kuchajda, trhovisko Miletičova, OC Central, OC VIVO ale aj novovybudované NIVY centrum v ktorých nájdete veľké množstvo obchodov ako aj hlavnú autobusovú stanicu.  

Ide o miesto s priamym napojením na Bajkalskú ulicu, vďaka ktorému získate rýchly prístup na diaľničný obchvat D1 a R7 s napojením na D4. Vďaka týmto obchvatom máte  zabezpečenú bezproblémovú dostupnosť do všetkých častí mesta ako aj do okolitých miest.

CENA:
Cena nájmu  je 1.200,- EUR na mesiac  vrátane energii .

Pri podpise zmluvy sa platí nájom za mesiac , akontácia v sume 1200 EUR ( pri skončení nájmu je vratná) , provízia RK 600 EUR. 

Neváhajte nás  kontaktovať.

KONTAKT:  maklér : Veronika  Gašpariková , +421 901 727 778 , mail: veronika.gasparikova@agreality.sk 

Fotografie a text sú autorským dielom a majetkom spoločnosti AG reality&finance


 

Vlastnosti

Status:
aktívne
Vlastníctvo:
osobné
Stav:
po rekonštrukcii
Celková plocha:
90 m2
Úžitková plocha:
90 m2
Poschodie:
8
Loggia plocha:
4 m2
Loggia:
áno
Počet podlaží:
10
Počet izieb:
3
Plocha balkóna:
4 m2
Balkón:
áno
Kúpeľňa:
vaňa
Počet kúpeľní:
1
Výťah:
áno
Klimatizácia:
áno
Káblová televízia:
áno
Parkovanie:
áno
Voda:
verejný vodovod
Krb:
nie
Zariadenie:
zariadený
Garáž:
áno - 1
Internet:
áno - káblový rozvod
Materiál:
Zmiešané
Vykurovanie:
áno
Pivnica:
áno
Pivnica plocha:
2 m2
Status:
aktívne
Vlastníctvo:
osobné
Stav:
po rekonštrukcii
Celková plocha:
90 m2
Úžitková plocha:
90 m2
Poschodie:
8
Loggia plocha:
4 m2
Loggia:
áno
Počet podlaží:
10
Počet izieb:
3
Plocha balkóna:
4 m2
Balkón:
áno
Kúpeľňa:
vaňa
Počet kúpeľní:
1
Výťah:
áno
Klimatizácia:
áno
Káblová televízia:
áno
Parkovanie:
áno
Voda:
verejný vodovod
Krb:
nie
Zariadenie:
zariadený
Garáž:
áno - 1
Internet:
áno - káblový rozvod
Materiál:
Zmiešané
Vykurovanie:
áno
Pivnica:
áno
Pivnica plocha:
2 m2

Pozrieť na mape

Maklér

Mgr. Veronika Gašpariková

Mgr. Veronika Gašpariková

riaditeľ pobočky

  • Slovensky
  • Česky
  • English

Radi Vám poradíme

Podobné nehnuteľnosti