Používame cookies

Súbory cookie a ďalšie technológie sledovania používame na zlepšenie vášho zážitku z prehliadania našich webových stránok, na to, aby sme vám zobrazovali prispôsobený obsah a cielené reklamy, na analýzu návštevnosti našich webových stránok a na pochopenie toho, odkiaľ naši návštevníci prichádzajú. Viac info

 

AG reality I PREDANÝ priestranný 1-izbový byt blízko centa mesta

Ulica: Prievozská
Mestská časť: Nivy
Obec: Bratislava-Ružinov
Okres: Bratislava II
Kraj: Bratislavský kraj
Druh: Byty
Typ: Predaj
Typ bytu: 1-izbový byt
174 900 €

Popis nehnuteľnosti

Exkluzívne AG REALITY I NA PREDAJ priestranný 1  izbový byt  - možnosť prerobiť na 2 izbový blízko Starého mesta - Prievozská ul. 

Chcete bývať v blízkosti  Starého  mesta a všade to mať na pešo?

Áno tento byt Vám túto možnosť ponúka.

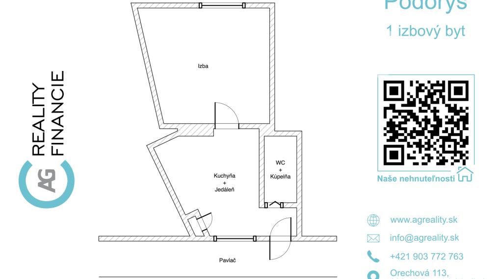
Byt sa nachádza na 3./4 poschodí pavlačového domu .  Byt má zvýšene stropy 3m. Do bytu sa  vstupuje chodbou oproti ktorej sa nachádza kúpeľňa so sprchovým kútom a spojená s wc. a prietokovým ohrievačom vody.  Po ľavej strane  je priestranná kuchyňa s plynovým sporákom   z ktorej sa prechádza do izby.  Byt má plastové okno v izbe a v kuchyni je drevené okno  , drevené dvere   v kúpeľni a kuchyni je dlažba a v izbe sú repasované drevené parkety. Vstupné dvere do byte sú bezpčnostné . V byte sú elektrické radiátory .  Byt sa predáva aj so zariadenim , ktoré sa tam teraz  nachádza. Orientácia bytu je S/J

Bytový dom:

Bol postavený v roku 1938 je tehlový  a zateplený zo strany dvora. Nachádza sa tu príjemný spoločný dvor . Na poschodiach je kamerový systém. Je umiestnený  oproti Biznis centru na Prievozskej. 

Cena: 174.900,- EUR!

Mesačné náklady: 70,- EUR meačne správcovská spoločnosť , plyn 30 EUR , elektrina 40 EUR  - spolu : 140 EUR 

Byt je bez tiarch a ihneď voľný k nasťahovaniu.

Lokalita a okolie:

Eurovea 15 min na pešo , OC Nivy 8 min na pešo  a do centra mesta je to 18 min na pešo.   

Rozloha bytu: : 

izba: 20,3 m2

kuchyňa s jedálňou : 14,74m2 

kúpeľňa : 3,24m2 

pivnica : 2,72m2

spolu : 41m2

Budeme radi ak si s nami dohodnete nezáväznú obhliadku a sami sa presvedčíte o výhodách bývania, ktoré tento skvelý byt určite ponúka.

V prípade záujmu prosím kontaktujte Andreu Gašparíkovu  - našu dlhoročnú realitnú maklérku  na mobil 0903 772 763 alebo na email info@agreality.sk

PONÚKAME KOMPLETNÝ PORADENSKÝ SERVIS
- komplexné poradenstvo spojené s poskytnutím HÚ (výber najvhodnejšieho produktu, odporučenie najvhodnejšej banky), celý proces vybavovania hypotéky je pre Vás zdarma! ( realizované skúsenými poradcami -firmou GLOBAL FINANCE s dlhoročnou bankovou praxou )
- problematika prevodu nehnuteľností
- problematika bezpečnej úhrady kúpnej ceny (hotovosť, vinkulácia v banke, notárska úschova a pod.)
- daňová problematika (daň z nehnuteľností)
- obhliadky nehnuteľností

KOMPLETNÝ PRÁVNY SERVIS
- vypracovanie Zmlúv o uzatvorení budúcej kúpnej zmluvy
- vypracovanie Kúpnych, nájomných zmlúv
- vypracovanie Zmlúv o prevode vlastníctva bytu, príp. nebytového priestoru
- vypracovanie Dodatkov k zmluvám
- vypracovanie Návrhu na vklad vlastníckeho práva
- vypracovanie Plnomocenstiev
- yypracovanie odovzdávacieho protokol
Použité materiály v tomto inzeráte sú duševným vlastníctvom RK AG reality+finance,s.r.o.

 

 

Vlastnosti

Status:
aktívne
Vlastníctvo:
osobné
Stav:
pôvodný
Celková plocha:
41 m2
Úžitková plocha:
41 m2
Poschodie:
3
Loggia:
nie
Počet podlaží:
4
Počet izieb:
2
Kúpeľňa:
sprchovací kút
Počet kúpeľní:
1
Výťah:
nie
Klimatizácia:
nie
Káblová televízia:
áno
Parkovanie:
verejné
Voda:
verejný vodovod
Zariadenie:
čiastočne
Inžinierske siete:
áno
Internet:
áno - wi-fi
Materiál:
tehla
Zateplený objekt:
áno
Vykurovanie:
vlastné - elektrické
Pivnica:
áno
Pivnica plocha:
2.72 m2
Status:
aktívne
Vlastníctvo:
osobné
Stav:
pôvodný
Celková plocha:
41 m2
Úžitková plocha:
41 m2
Poschodie:
3
Loggia:
nie
Počet podlaží:
4
Počet izieb:
2
Kúpeľňa:
sprchovací kút
Počet kúpeľní:
1
Výťah:
nie
Klimatizácia:
nie
Káblová televízia:
áno
Parkovanie:
verejné
Voda:
verejný vodovod
Zariadenie:
čiastočne
Inžinierske siete:
áno
Internet:
áno - wi-fi
Materiál:
tehla
Zateplený objekt:
áno
Vykurovanie:
vlastné - elektrické
Pivnica:
áno
Pivnica plocha:
2.72 m2

Informatívna úverová kalkulačka

Pozrieť na mape

Maklér

Andrea Gašpariková

Andrea Gašpariková

Konateľ

  • Slovensky
  • Česky
  • rusr
  • lrm
  • narks

Radi Vám poradíme

Podobné nehnuteľnosti